Custom Home Pricing Starting at $240 per Sq. Ft.
Design and Build Is Our Passion!
Whether you have plans and are just looking for the right builder, or are wanting to put your needs to paper, we are setup to turn your vision into reality.
Our custom home prices start at $240 per square foot living space at standard spec and our pricing structure allows you to upgrade as needed while receiving a credit back for the included finish or item.
We offer a free site analysis to evaluate your property and under a $1500.00 deposit, we can work closely with you to design your floor plans and elevations to suit your needs and provide a no surprises up front costing - based off your custom features and selections.
The Escape
No decks or covered areas
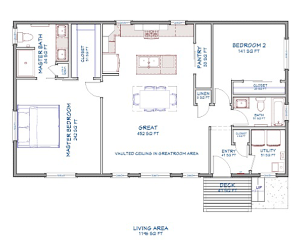
- Total Cost of Home As Shown – 1500 S/F Living Space, 457 S/F Garage, Siding Options, Covered Decks: $449,990.00.
- *Price of home does not include utilities, drive ways, connection fees, owners risk insurance, and permit fees. Call us for a free site analysis to determine these costs.
- *Price of home includes 48” ICF Concrete stemwall foundation and excavation and cut drainage for 20’ around the foundation. Sloping or stepping site conditions in the foot print of the house or considerations outside of this for excavation may incur additional costs. Call us for a free site analysis.
- Consider Common Upgrades! Granite or Equal Counter Tops and Tiled Master Shower for $10,488.00
- Sign up before May 25th, 2025 to receive $20,000.00 towards utility connections, appliances, or upgrades of your choice included in price.
- *Limited availability offered to first 3 homes. Must have financing in place and contract before May 25th 2025 to qualify.


This home is designed to provide comfortable square footage for many different living situations in Pagosa Springs Colorado. Boasting an attractive exterior and simple roof line to easily shed snow, this floor plan creates distance between the master bedroom and other bedrooms/optional den while creating spacious living and kitchen/dining areas to make many memories. This home is designed to conform to PLPOA requirements or to be easily maintained and tolerant to heavy snows in all areas of the county.

Sign up before May 2025 to receive $20,000.00 towards utility connections,
appliances, or upgrades of your choice included in price.
Limited availability offer. Must have financing in place and contract before May 25th 2025 to qualify.
Coming SOON!
The Simple Modern
- *Price of home does not include utilities, drive ways, connection fees, owners risk insurance, and permit fees. Call us for a free site analysis to determine these costs.
- *Price of home includes 48” ICF Concrete stem wall foundation and excavation and cut drainage for 20’ around the foundation. Sloping or stepping site conditions in the foot print of the house or considerations outside of this for excavation may incur additional costs. Call us for a free site analysis.
- Consider Common Upgrades! Add Granite Counter Tops and Tiled Master Shower: $12,600.00 - Extend Uncovered Front Deck Through Living Area and Add Sliding Glass Door to Front Deck - $6400.00.
- Sign up before May 2025 to receive a special $10,000.00 budget towards utility connections, appliances, or upgrades of your choice included in price.

Part of the “Perfect Colorado Home Line” The Simple Modern” creates the unique opportunity to be stylish, contemporary and extremely low maintenance all in one build. With an ultra efficient open floor plan that maximizes comfortable spaces in a smaller foot print and an exterior designed to alleviate winter worries, this is a home you can easily point in the direction of the best views on your lot and enjoy the scenery!

